‹ › ×
    LE LOFT
    • LES PLATEAUX "LE LOFT"
    • EVENT & PRIVATISATION
    • LES PRESTATIONS "LE LOFT"
    • CONTACT & RESERVATION

    5 espaces Professionnels pour liberer vos énergies créatives

    Un tarif unique et tout compris pour vous simplifier la gestion de vos espaces créatifs, ou sur demande l'étude gratuite d'un devis personnalisé.

    LE PLATEAU LOFT

     

    * Plateau de 112 m2 

    * Forfait journée semaine et we, 1/2 journée

     

    * Espace Loge et Make-Up inclus


    LE LOFT

    LE STUDIO

     

    * Plateau de 32 m2 

    * Forfait journée semaine et we, 1/2 journée

     

    * Espace Loge et Make-Up inclus

     

    * Fonds : Vert, Noir, Rouge, Blanc autre coloris à la demande en option

    Le Studio

    L'ESPACE CUISINE

     

    * Plateau de 30 m2 adapté aux activités culinaires 

    * Forfait journée semaine et we, 1/2 journée

     

    * Espace Loge et Make-Up inclus


    LA KITCHEN

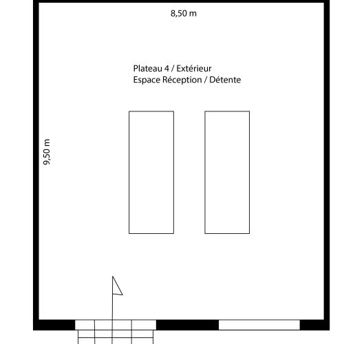
    LE ROOFTOP

     

    * Plateau Exterieur de 90 m2 

    * Forfait journée semaine et we, 1/2 journée

     

    * Espace Loge et Make-Up inclus


    LE ROOFTOP

    L' AUDIO - VIDEO

     

    * Plateau de 32 m2 et Régie de 15 m2 

    * Forfait journée semaine et we, 1/2 journée

     

    * Espace Loge et Make-Up inclus


    LE STUDIO AUDIO VIDEO

    AUTRES INFORMATIONS

     

    * Hauteur sous plafond 3 m

     

    * Assistant plateau à la journée sur devis

     

    * Hotesse à la journée sur devis

    * Make-Up ou Coiffure sur devis

     

    * Coach, Corégraphe, Styliste, Décorateur sur devis

     

    Téléchargez notre brochure au format pdf :

    BROCHURE PDF "LE LOFT STUDIO"

    Recevez votre devis :

    LOCATION et EVENT SUR DEVIS

    Un cadre exceptionnel

     

    Dans une ambiance Loft super acceuillante, plusieurs plateaux d'expression créatives pour montrer vos énergies et capturer vos talents. Equipés ou vides, avec ou sans services associés, nous sommes là pour vous aider et vous guider dans vos réalisations.  

     

    Sur Devis, des services à la carte

     

    * Assistance Plateau Photo / Vidéo

    * Make Up Pro / Hair Dresser Pro

    * Personnel d'acceuil
    * Cocktail

    * Buffet

     

    La location complémentaire d'équipements suivant vos besoins

     

    * Système son

    * Retours Vidéos

    * Eclairages continus professionnels sur console

    * Eclairages de Studio de type Strobe
    * Fonds ...

     

    Vous êtes tenté ? Contactez nous !

     

    En nous écrivant via le formulaire

    de cette page

      

    /!\ 
    Le Studio Loft est malheureusement fermé
    depuis la crise Covid, mais notre Studio Bis reste à disposition aux portes de Paris et notre studio mobile sur site  inchangé. N'hésitez pas à nous contacter pour toute programmation.

     

    Nous disposons aussi d'un plateau spectacle et studio aménageable, privatisable et en résidence aux portes de Toulouse.

     
    LE LOFT STUDIO

     

     

     

    Le Loft Studio

    Location de plateaux d'expression créative.


    Management et Création d'outils de communication.



    Informations légales

    Copyright Le Loft Studio

    Tous droits réservés

    Crédits photos : Le Loft Studio / Contenus Non Libres de droits

    Site réalisé par The GraffiK Agency / Le Loft Studio.

     

    Utilisation des cookies

    Pour vous assurer une expérience réussie, 

    ce site utilise des cookies à des fins statistiques uniquement. Vos données personnelles ne sont pas enregistrées ni stockées.

     

    Réseaux sociaux

    Pour suivre l'actualité du Loft Studio,

    n'hésitez pas à nous suivre sur les réseaux sociaux :